X




Bouwgrond te WAARSCHOOT (9950)

€ 445.500

Bouwgrond te Waarschoot

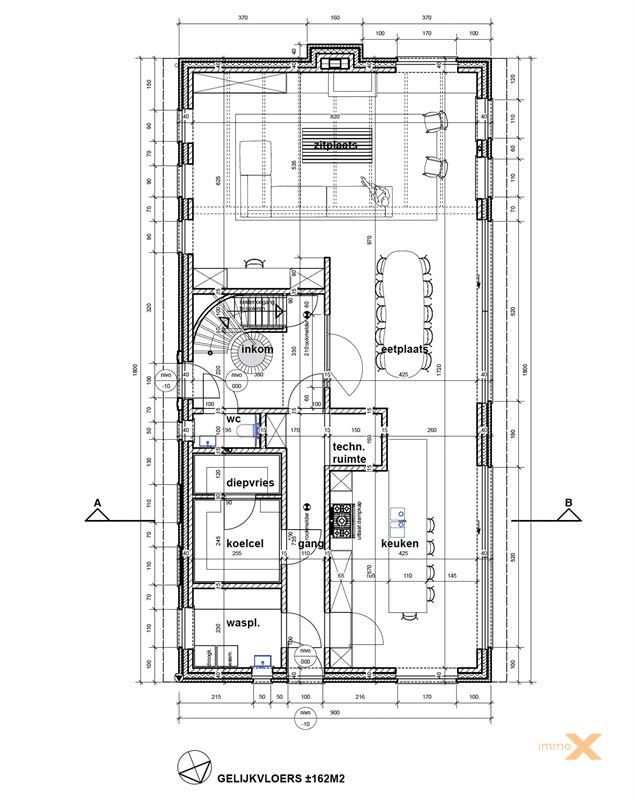
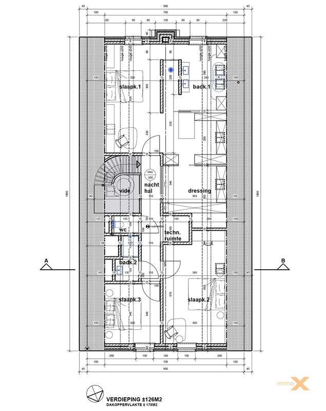
AF TE BREKEN WONING MET GOEDGEKEURDE BOUWPLANNEN OP PERCEEL VAN 1281m2. Deze rustig gelegen, af te breken hoevewoning is gelegen in agrarisch gebied. Goedgekeurde bouwplannen en vergunning aanwezig voor afbraak en bouw van ruime villa met zwembad en afzonderlijke dubbele garage. Oppervlakte perceel: 1281m2 (volgens recent opmetingsplan). PRACHTIG TE BOUWEN WONING IN AGRARISCH GEBIED, ABSOLUTE TOPKANS!! Meer info over bouwplannen, bouwvoorschriften, bouwvergunning en voorwaarden, op kantoor Immo-X. Geen bouwverplichtingen t.o.v. bepaalde aannemers, u kiest zelf met wie u bouwt. De verkoop betreft de grond met de af te breken woning en de goedgekeurde plannen (bouwen van de nieuwe woning en aanhorigheden niet inbegrepen!). Bezoek enkel mogelijk op afspraak via mail.
Kadastraal inkomen:
€ 245
Aantal slaapkamers:
3
Aantal badkamers:
2
Garage:
1
Adres:
Hogevoorde 10, 9950 WAARSCHOOT
Bewoonbare opp.:
288 m²
Grondoppervlakte:
1281 m²
Perceel breedte:
385 m

Energie certificaat

EPC No.20221005-0002690037-RES-1
EPC:
555 kWh/m².jaar


Stedenbouwkundige informatie

Voorkooprecht:
Nee
Bouwvergunning verkregen:
Ja
Dagvaarding en herstelvordering:
Geen rechterlijke herstelmaatregel of bestuurlijke maatregel opgelegd
Verkavelingsvergunning:
Nee
Bestemming:
Agrarisch gebied
Erfgoed:
Inventaris van bouwkundig erfgoed

Comfort

Verwarming:
Niet meegedeeld
Type dak:
Zadeldak
Dakbedekking:
Pannen
Keuken:
Kasten met toestellen

Financiële Info

€ 445.500

Meer informatie?

Laat iets van je horen via 0473 71 71 70 of stuur ons een bericht:

Uw naam ontbreekt.
Uw gsm of telefoon nummer ontbreekt.
Uw email adres ontbreekt.
Uw bericht ontbreekt.

Immo-X

Grote Baan 164, 9920 Lievegem, België

Vastgoedmakelaar - Bemiddelaar BIV 504.778 (Belgiê)
Toezichthoudende autoriteit : Beroepsinstituut van Vastgoedmakelaars (BIV)

Luxemburgstraat 16 B, 1000 Bruxelles, België

ON 0892-488-585 - BTW 0892-488-585 -  BA en borgstelling via Axa 730.390.160
BIV plichtenleer: https://www.biv.be/vastgoedmakelaar-biv/deontologie-van-de-vastgoedmakelaar

Openingsuren

maandag
20-10-2025
09:00 - 16:30
dinsdag
21-10-2025
09:00 - 16:30
woensdag
22-10-2025
09:00 - 16:30
donderdag
23-10-2025
09:00 - 16:30
vrijdag
24-10-2025
09:00 - 16:30
zaterdag
25-10-2025
op afspraak
zondag
26-10-2025
gesloten

In de namiddag steeds op afspraak.